- Rozloha 38 m2
- Košice-Sever
PREDANÝ Na predaj 1,5 izbový byt po rekonštrukcii, Palkovičova ulica, Košice - Sever
Predaj, Košice-Sever
| Interné ID: | SCbxYDcaFFv |
|---|---|
| Ulica: | Watsonova |
| Obec: | Košice-Sever |
| Okres: | Košice I |
| Kraj: | Košický kraj |
| Druh: | Byty |
| Typ: | Predaj |
| Typ bytu: | 1-izbový byt |
| Iné: |
REZERVOVANÝ
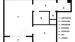
Ponúkame na predaj 1-izbový byt s LODŽIOU na ulici Watsonova, nachádzajúci sa v obľúbenej lokalite Košice - Sever. Vďaka výbornej strategickej polohe je byt vhodný ako investičná príležitosť alebo na vlastné bývanie. Byt disponuje vstupnou chodbou, samostatnou toaletou, kúpeľňou, kuchyňou a samostatnou izbou s výstupom na lodžiu. Byt je v pôvodnom a vypratanom stave, čo umožňuje realizáciu rekonštrukcie podľa vlastných predstáv. Jeho úžitková plocha je 37 m², súčasťou bytu je lodžia a pivnica. Byt je na 8. poschodí z 12. Cena 159.999 EUR. Financovanie je možné aj prostredníctvom hypotéky, s ktorou Vám radi pomôžeme. Ak Vás táto ponuka zaujala neváhajte mi zavolať na čísla 0902 198 170, alebo na mail: sopko@diamondreality.sk


CEO spoločnosti - Riaditeľ a konateľ Diamond Reality
V našej firme máme heslo, že "iní ponúkajú nehnuteľnosť, avšak my predávame domov". Týmto heslo sa snažím pristupovať ku každému klientovi a zároveň aj viesť našich maklérov.