- Rozloha 90 m2
- Košice-Dargovských hrdinov
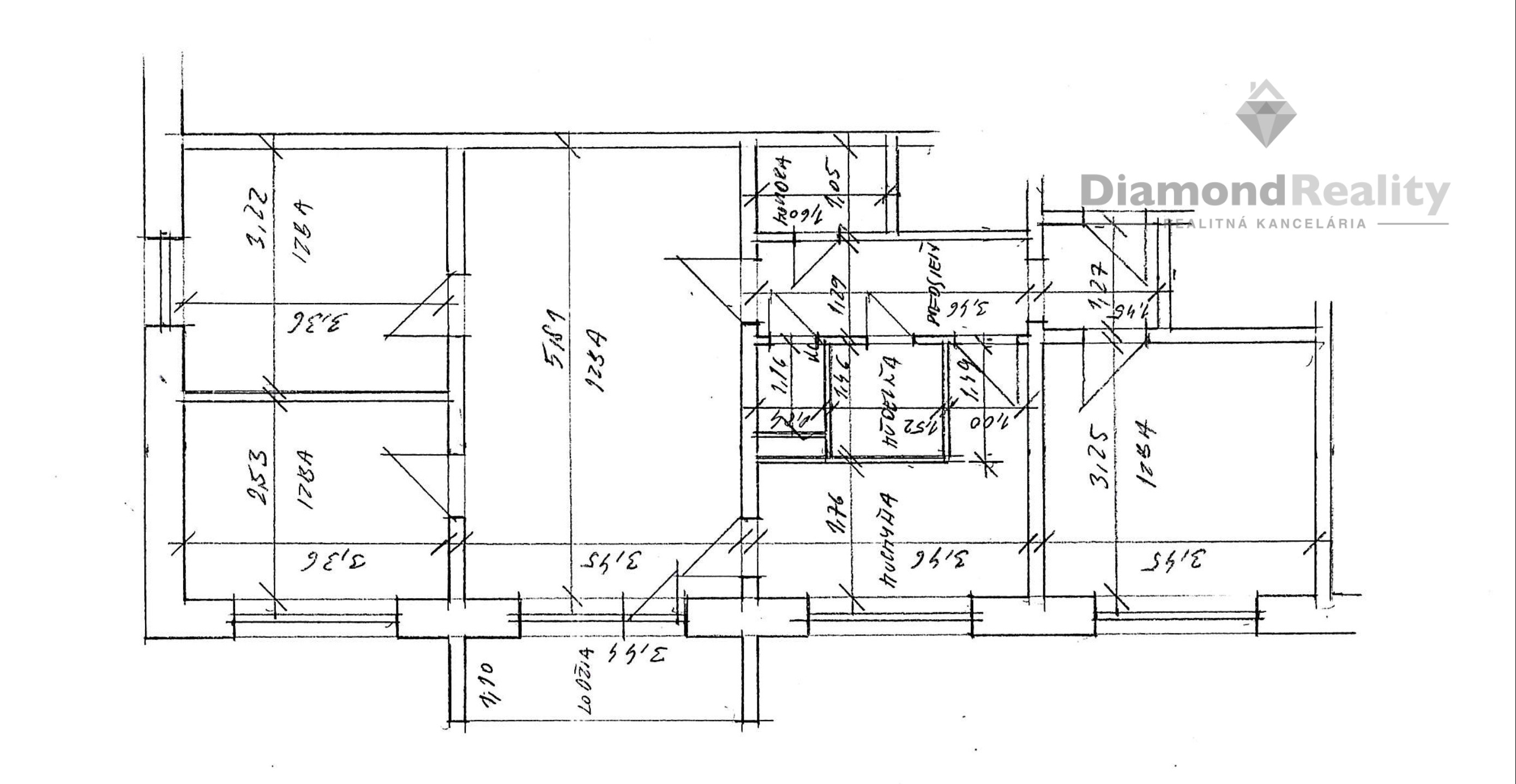
4 izbový byt na ulici Dvorkinova 90m2
Predaj, Košice-Dargovských hrdinov
| Interné ID: | 757gfg |
|---|---|
| Ulica: | Výstavby |
| Obec: | Košice-Západ |
| Okres: | Košice II |
| Kraj: | Košický kraj |
| Druh: | Byty |
| Typ: | Predaj |
| Typ bytu: | 4-izbový byt |
| Iné: |
Ponúkame na predaj 4-izbový byt na ulici Výstavby, v obľúbenej lokalite Košice - Západ(Terasa). Byt je v úplne pôvodnom stave, ideálny na rekonštrukciu podľa vlastných predstáv. Rozloha bytu je 72 m² a je situovaný na 9/10 poschodí zatepleného bytového domu s novým výťahom. Z obývačky je výstup na lodžiu, k bytu prináleží aj pivnica. Byt je v osobnom vlastníctve, takže kúpa je možná aj na hypotéku. Dispozícia bytu: vstupná chodba, kuchyňa, obývačka s výstupom na lodžiu, 3 spálne, kúpeľňa, samostatné WC. Byt v cene 215.000 EUR sa nachádza v lokalite s kompletnou občianskou vybavenosťou. Výborná dostupnosť do centra mesta a dobré spojenie MHD. Neváhajte a dohodnite si obhliadku ešte dnes na telefónnom čísle 0902 198 170, email: sopko@diamondreality.sk.


CEO spoločnosti - Riaditeľ a konateľ Diamond Reality
V našej firme máme heslo, že "iní ponúkajú nehnuteľnosť, avšak my predávame domov". Týmto heslo sa snažím pristupovať ku každému klientovi a zároveň aj viesť našich maklérov.