Používame cookies

Súbory cookie a ďalšie technológie sledovania používame na zlepšenie vášho zážitku z prehliadania našich webových stránok, na to, aby sme vám zobrazovali prispôsobený obsah a cielené reklamy, na analýzu návštevnosti našich webových stránok a na pochopenie toho, odkiaľ naši návštevníci prichádzajú. Viac info

ODKÚPIME VAŠU NEHNUTEĽNOSŤ
 

Na predaj starší rodinný dom s veľkou záhradou obec Siladice.

Ulica: nemá
Obec: Siladice
Okres: Hlohovec
Kraj: Trnavský kraj
Druh: Domy
Typ: Predaj
Typ domu: Rodinný dom
Iné:
76 000 €

Popis nehnuteľnosti

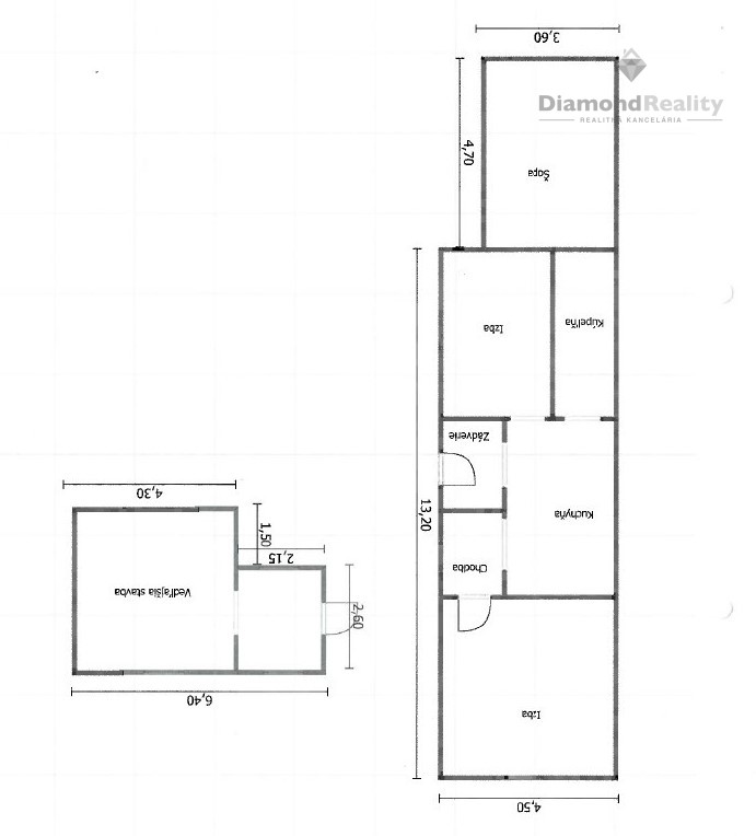
Na predaj rodinný dom, obec Siladice. Dom v pôvodnom stave, vhodný na rekonštrukciu. Obytná plocha domu: 71 m2. Celková výmera pozemku: 760 m2. Za domom je krásna veľká záhrada, a za záhradou už nepokračuje obec, je tam pole, keďže dom je na kraji dediny, je tu otvorený priestor, ticho, nádherná príroda.

Dom je postavený z porobetonu, má betónovú podlahu, plastové okná, plastové dvere. Je pripojený do elektrickej siete a na obecný vodovod. Na hranicu pozemku je dovedený plyn, a je vybudovana plynomerná šachta. Momentálne plyn nie je zapojený. Vŕtaná studňa do hĺbky 9 metrov, v roku 2019. Potrebné dobudovať žumpu (vyriešiť odpad), v obci zatiaľ nie je kanalizácia. Autom je to do Trnavy, Hlohovca aj Serede 15 minút. Dom bol postavený v r. 1972. Nachádza sa v radovej zástavbe, na okraji obce. Za záhradou je. Voľný hneď.

Cena nehnuteľnosti je 76 000 EUR. Energetický certifikát na vyžiadanie. V prípade, ak máte záujem o kúpu alebo predaj nehnuteľnosti, pozrite si prosím ponuku našej realitnej kancelárie. Pokiaľ máte o uvedenú nehnuteľnosť záujem, kontaktujte prosím tel. č. 0944 328 264.

KONTAKT: + 421 944 328 264

Vlastnosti

Status:
aktívne
Vlastníctvo:
osobné
Plocha pozemku:
760 m2
Typ zeme:
rovina
Úžitková plocha:
760 m2
Zastavaná plocha:
760 m2
Stav:
pôvodný stav
Rok výstavby:
1972
Celková plocha:
760 m2

Informatívna úverová kalkulačka

Pozrieť na mape

Maklér

Mgr. Tatiana Danišovičová

Mgr. Tatiana Danišovičová

Maklér pre lokalitu Senica, Trnava a blízke okolie. Realitnú činnosť vykonáva cez franchízového partnera - Tatiana Danišovičová, IČO: 48 328 146

  • Slovensky
  • Česky
  • English

Profesiu realitnej maklérky som si vybrala, lebo rada zdolávam nové výzvy, ktoré táto práca prináša. Každý deň riešim iný prípad, nových klientov, rôzne požiadavky.
 

Radi Vám poradíme

Podobné nehnuteľnosti

Rezidencia Krásna