Používame cookies

Súbory cookie a ďalšie technológie sledovania používame na zlepšenie vášho zážitku z prehliadania našich webových stránok, na to, aby sme vám zobrazovali prispôsobený obsah a cielené reklamy, na analýzu návštevnosti našich webových stránok a na pochopenie toho, odkiaľ naši návštevníci prichádzajú. Viac info

ODKÚPIME VAŠU NEHNUTEĽNOSŤ
 

Na predaj rodinný dom , Staničná ulica , Veľké Kapušany, okres Michalovce

Interné ID: 3344
Ulica: Staničná
Obec: Michalovce
Okres: Michalovce
Kraj: Košický kraj
Druh: Domy
Typ: Predaj
Typ domu: Rodinný dom
Iné:
84 990 €

Popis nehnuteľnosti

 Na predaj rodinný dom s veľkým pozemkom vo Veľkých Kapušanoch – ideálny na rekonštrukciu podľa vlastných predstáv!

Ponúkame Vám na predaj rodinný dom nachádzajúci sa v pokojnej lokalite mesta Veľké Kapušany na ulici Staničná. Nehnuteľnosť bola donedávna obývaná, je v pôvodnom stave a pripravená na rekonštrukciu – ideálna príležitosť pre tých, ktorí si chcú vytvoriť bývanie presne podľa svojho vkusu a potrieb.

  Prečo je tento dom skvelá voľba?

   možnosť kompletnej rekonštrukcie podľa vlastných predstáv
   priestranný pozemok s rôznymi možnosťami využitia
   pokojná lokalita vhodná na rodinné bývanie
   hospodárske budovy a garáž priamo na pozemku

  Základné informácie:

   Lokalita: Staničná, Veľké Kapušany
   Pozemok: 1067 m²
   Zastavaná plocha domu: 100 m²
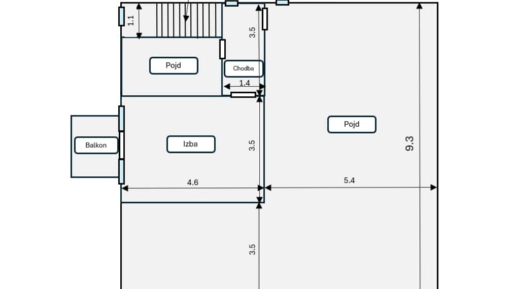
   Dispozícia:

    Prízemie: kuchyňa + 3 izby
    1. podlažie: 1 izba
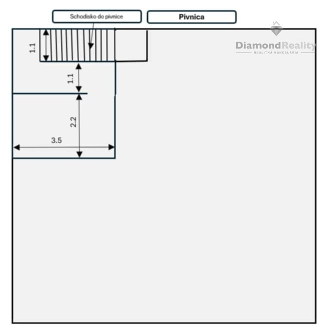
    Pivnica (čiastočné podpivničenie)
    Povala

  Technické údaje:

  Inžinierske siete: elektrina, plyn, voda
  Odpad: žumpa
  Kúrenie: plynové gamatky

🏠 Na pozemku sa nachádzajú aj hospodárske budovy a garáž, čo poskytuje dostatok priestoru na skladovanie, dielňu alebo ďalšie využitie.

 Tento dom je ideálny pre rodinu alebo investora, ktorý hľadá nehnuteľnosť s potenciálom a chce si ju prispôsobiť podľa vlastných predstáv.

 

Cena nehnuteľnosti je 84.990 Eur a zahŕňa províziu pre RK.

Pre ďalšie informácie o tejto nehnuteľnosti a dohodnutie obhliadky neváhajte kontaktovať Slavomíru Badžovú, na tel. čísle 0917 942 190 alebo prostredníctvom e-mailu: badzova@diamondreality.sk .

Vlastnosti

Status:
aktívne
Vlastníctvo:
osobné
Plocha pozemku:
1067 m2
Úžitková plocha:
100 m2
Stav:
čiastočne prerobený
Celková plocha:
1067 m2

Informatívna úverová kalkulačka

Pozrieť na mape

Maklér

Slavomíra Badžová

Slavomíra Badžová

Maklér pre lokalitu Košice a blízke okolie. Realitnú činnosť vykonáva cez franchízového partnera - SNdiamond s. r. o., IČO: 57 480 567

  • Slovensky
  • Česky

Radi Vám poradíme

Podobné nehnuteľnosti

Rezidencia Krásna