- Izby 5
- Rozloha 150 m2
- Čečejovce
Na predaj 5 izbový rodinný dom v obci Čečejovce, Košice - okolie
Predaj, Čečejovce
| Ulica: | seňa |
|---|---|
| Obec: | Seňa |
| Okres: | Košice - okolie |
| Kraj: | Košický kraj |
| Druh: | Domy |
| Typ: | Predaj |
| Typ domu: | Rodinný dom |
Ladislav Šosták a Diamond Reality vám ponúkajú na predaj 4 izbovú novostavbu s krásnym pozemkom o výmere 381 m², v zastavanej časti obce Seňa.
>>>VIDEOOBHLIADKU domu si môžete pozrieť skopírovaním tohto linku do vášho prehliadača: https://youtu.be/kdnZ7Fh1_nQ
áto obľúbená lokalita je vzdialená len 15 minút autom od Košíc, s pravidelnou autobusovou dopravou (2× za hodinu). Ak bývate v byte a túžite po vlastnej záhrade, kde sa deti konečne môžu do sýtosti vybehať a vy si vychutnáte kávu na terase, práve ste to našli.
Tento dom je ideálnou voľbou, ako vymeniť betón za kúsok zelene bez kompromisov.
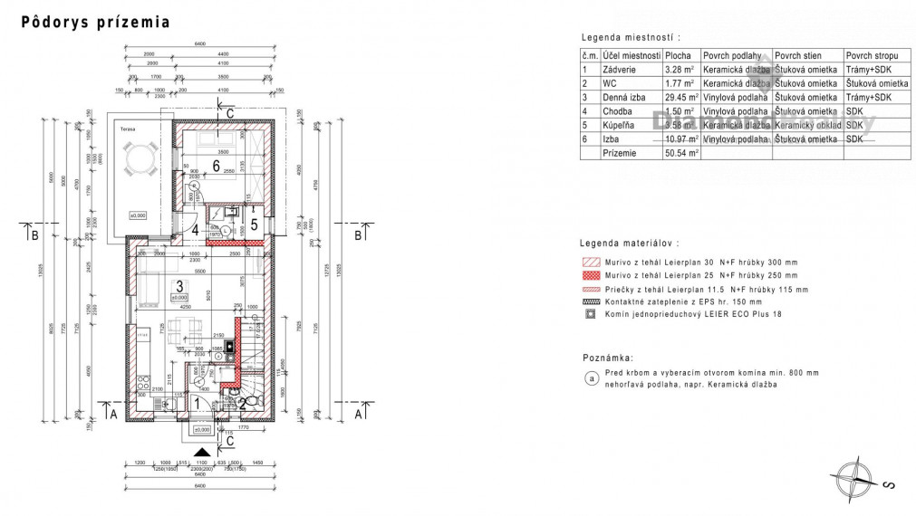
Prečo bez kompromisov? Lebo tu nájdete až 3 samostatné spálne, priestrannú obývačku prepojenú s kuchyňou, 2 kúpeľne, vykurovanie riešené tepelným čerpadlom a k tomu aj krb. Úžitková plocha domu je 88 m² a poteší aj to, že hlavná spálňa sa nachádza na prízemí, čo ocenia hlavne starší ľudia. Dom je aktuálne napojený na elektrinu, vlastnú studňu a žumpu, no v príprave je obecný vodovod, na ktorý bude možnosť napojenia. Krásny rovinatý pozemok je ideálny na váš vysnený bazén, detské ihrisko alebo prístrešok pre auto.
Tento dom sa predáva v štádiu uzavretej hrubej stavby, takže si ho môžete dokončiť podľa seba – či už svojpomocne, alebo v spolupráci s našou stavebnou firmou presne podľa vášho vkusu. Od podláh, cez kuchyňu, až po dekorácie. Seňa je dlhodobo obľúbená aj pre výbornú občiansku vybavenosť, školy, škôlky, obchody, športoviská aj služby. Do centra obce sa dostanete pešo len za 5 minút, všetko máte na dosah.
Cena uzavretej hrubej stavby: 159.900€
Cena holodomu stavebnou firmou: po dohode s klientom podľa použitých materiálov
Ceny sú vrátane všetkých poplatkov spojených s prevodom nehnuteľnosti.
Zavolajte mi na 0911 337 969 a rád vám odpoviem na všetky informácie a ukážem vám miesto, kde vyrastie váš nový domov.

CHRO spoločnosti - Personálny riaditeľ Diamond Reality. Ako realitný maklér vykonáva realitnú činnosť cez spoločnosť Diamond Reality Šosták s.r.o., IČO: 52 963 268
Volám sa Ladislav Šosták a rád by som sa Vám v nasledujúcich riadkoch predstavil. Narodil som sa v roku 1992 v Kechneci, kde som vyrastal a kde som taktiež navštevoval základnú školu. Strednú školu som absolvoval v Košiciach a to bilingválne anglické gymnázium J. A. Komenského, ktorá mi dala skvelé základy angličtiny pri terajšej komunikácii so zahraničnou klientelou.