
- Rozloha 16 m2
- Prešov
Predajný stánok
Predaj, Prešov
Obec: | Košické Oľšany |
---|---|
Okres: | Košice - okolie |
Kraj: | Košický kraj |
Druh: | Objekty |
Typ: | Predaj |
Typ objektu: | Komerčný objekt |
Investícia, ktorá dáva zmysel.
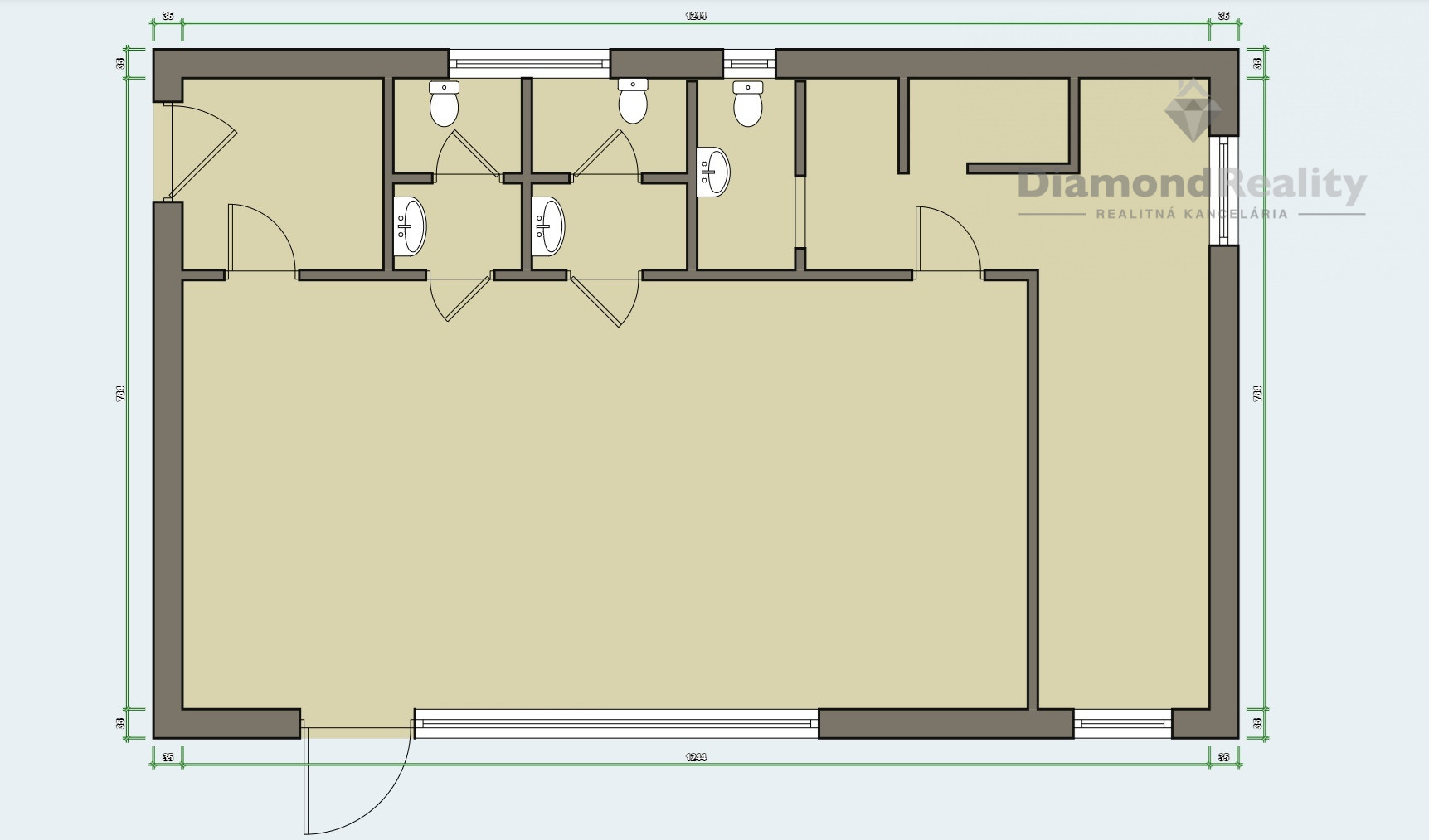
Štefan Klapko a realitná kancelária Diamond Reality Vám v exkluzívnom zastúpení ponúka na predaj samostatne stojacu novostavbu, skolaudovanú v roku 2023, ktorá je pripravená okamžite slúžiť vašim podnikateľským zámerom. Objekt je svojou dispozíciou aj vybavením vhodný pre showroom, kancelárie, obchodné zastúpenie, vzorkovú predajňu, menšiu výrobu či sklad.
Budova stojí v Košických Olšanoch, len 7 km od Košíc, čo jej dáva strategickú polohu – blízkosť mesta bez nutnosti tráviť čas v zápchach a s priamym napojením na diaľnicu a obchvat. Vďaka tomu sa rýchlo dostanete ku klientom a partnerom po celom východnom Slovensku, nech smerujete do Prešova, Michaloviec, Trebišova či Rožňavy.
📐 Parametre objektu:
🏢 Dispozícia a vybavenie:
🚀 Výhody polohy:
🅿️ Praktické benefity:
💡 Ak hľadáte sídlo alebo prevádzku pre firmu, ktorá nemusí byť priamo v Košiciach, tento objekt vám ponúka strategicky výhodnú alternatívu – reprezentatívny priestor s perfektnou dostupnosťou a parkovaním bez stresu.
Maklér pre lokalitu Košice a blízke okolie.