
- Rozloha 38 m2
- Košice-Sever
PREDANÝ Na predaj 1,5 izbový byt po rekonštrukcii, Palkovičova ulica, Košice - Sever
Predaj, Košice-Sever
Interné ID: | aeferg |
---|---|
Ulica: | Krivá |
Obec: | Košice-Juh |
Okres: | Košice IV |
Kraj: | Košický kraj |
Druh: | Byty |
Typ: | Predaj |
Typ bytu: | 1-izbový byt |
Iné: |
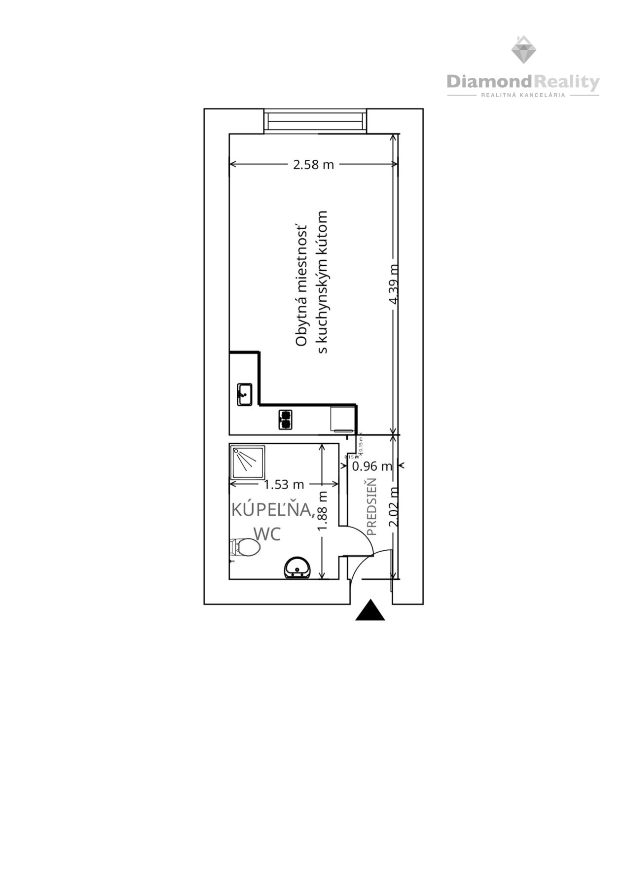
Ponúkame na predaj 1-izbový byt na PERFEKTNEJ adrese v Košiciach. Ide o moderne zrekonštruovaný byt, situovaný vo vyhľadávanej lokalite na Krivej ulici č. 18, len na skok od centra mesta. Tento byt je ideálny nielen na bývanie, ale aj ako investičná príležitosť na krátkodobý či dlhodobý prenájom. Byt má úžitkovú plochu 16 m² a nachádza sa na IDEÁLNOM 2. poschodí z celkovo 9. Orientácia je juhozápadná. BYT JE KOMPLETNE VYBAVENÝ AKO VIDÍTE NA FOTOGRAFIÁCH !!!
Byt je po kompletnej rekonštrukcii, ktorá zahŕňa výmenu všetkých rozvodov (voda, odpad, elektrina), nové omietky, znížené sadrokartónové stropy, plávajúce podlahy, plastové okná, interiérové dvere a bezpečnostné vchodové dvere. Kúpeľňa je kompletne zrekonštruovaná s novým obkladom, dlažbou a sanitou. Bytový dom je kompletne zrekonštruovaný, vrátane výmenených stúpačiek, vstupných priestorov, brány, schránok a má dva nové výťahy. Dispozične byt ponúka 1 izbu spojenú s kuchynským kútom, malú predsieň a kúpeľňu spojenú s WC.
Cena 125.000 EUR, vrátane provízie pre sprostredkovateľa. Ponúkame aj služby hypotekárneho poradenstva, kde Vám pomôžeme získať najlepšiu možnú hypotéku na trhu.
CEO spoločnosti - Riaditeľ a konateľ Diamond Reality
V našej firme máme heslo, že "iní ponúkajú nehnuteľnosť, avšak my predávame domov". Týmto heslo sa snažím pristupovať ku každému klientovi a zároveň aj viesť našich maklérov.