- Hosťová
top cena!Na predaj stavebný pozemok v malebnej obci Hosťová
Predaj, Hosťová
| Ulica: | Bádice |
|---|---|
| Obec: | Bádice |
| Okres: | Nitra |
| Kraj: | Nitriansky kraj |
| Druh: | Pozemky |
| Typ: | Predaj |
| Typ pozemku: | Pozemok pre rodinné domy |
Ponúkame na predaj atraktívny stavebný pozemok v obci Bádice, len pár minút od Nitry, v pokojnej lokalite obklopenej krásnou prírodou. Ideálne riešenie pre klientov, ktorí hľadajú tiché bývanie s výbornou dostupnosťou do mesta.
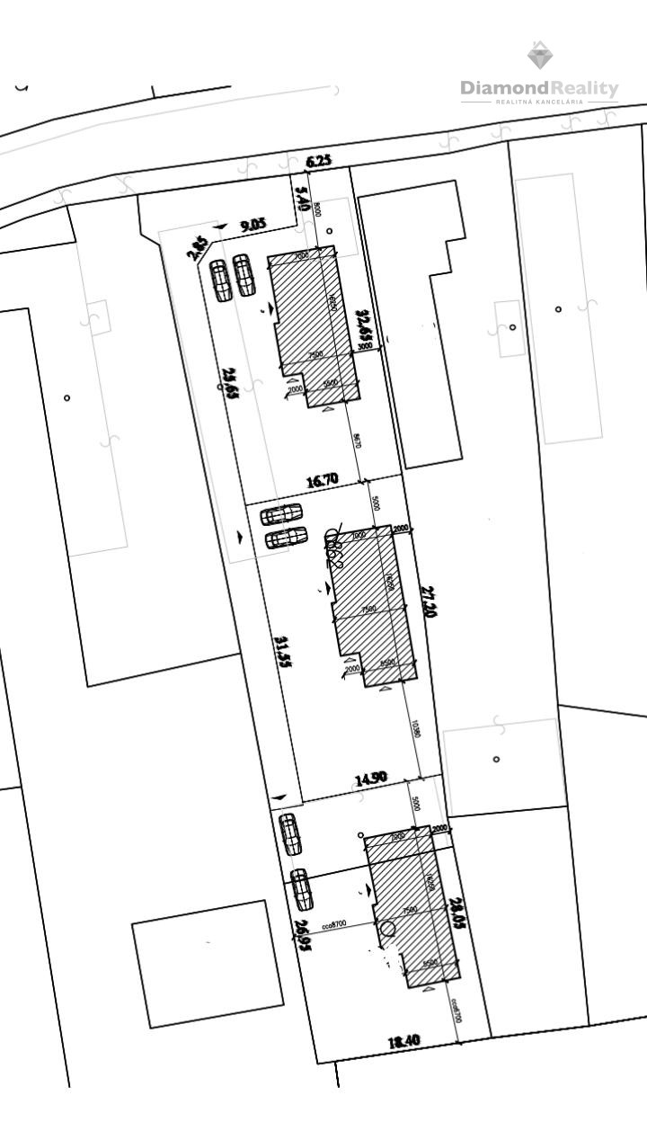
Výmera pozemku: 754 m²
Šírka pozemku: 19 m
Inžinierske siete – voda, elektrina, plyn a kanalizácia – sa nachádzajú priamo na hranici pozemku. Pozemok má pravidelný tvar a nachádza sa v zastavanej časti obce.
Spolupracujeme so stavebnými firmami, ktoré Vám postavia murovaný alebo montovaný dom, podľa preferencií nového majiteľa.
Cena: 63 000 EUR
Cena zahŕňa kompletný realitný a právny servis, vrátane autorizovaných zmlúv vypracovaných advokátom. V cene je zabezpečené aj poradenstvo a vybavenie najvýhodnejšieho financovania.
V ponuke máme 3 pozemky, ktoré čakajú na nových majiteľov. V inzeráte nájdete náčrt pre predstavu.
Občianska vybavenosť a lokalita:
Obec Bádice disponuje základnou občianskou vybavenosťou – nachádza sa tu materská škola, obecný úrad, potraviny a zastávka autobusu. Kompletná občianska vybavenosť vrátane škôl, zdravotných stredísk, obchodov a služieb je dostupná v neďalekej Nitre. Lokalita ponúka príjemné prostredie pre rodinné bývanie, prechádzky a oddych v prírode.
Kontakt:
Ing. Bernardína Beneová
Diamond reality Nitra s.r.o.
Telefón: 0908 133 421
E-mail: beneova@diamondreality.sk

Riaditeľ pobočky Diamond Reality Nitra a realitný maklér pre Nitru a blízke okolie. Realitnú činnosť vykonáva cez franchízového partnera - Diamond Reality Nitra, s.r.o., IČO: 51 725 835