Používame cookies

Súbory cookie a ďalšie technológie sledovania používame na zlepšenie vášho zážitku z prehliadania našich webových stránok, na to, aby sme vám zobrazovali prispôsobený obsah a cielené reklamy, na analýzu návštevnosti našich webových stránok a na pochopenie toho, odkiaľ naši návštevníci prichádzajú. Viac info

ODKÚPIME VAŠU NEHNUTEĽNOSŤ
 

Kompletne zrekonštruovaný 3izbový byt na Terase

Ulica: Čapajevova
Mestská časť: Luník II
Obec: Košice-Západ
Okres: Košice II
Kraj: Košický kraj
Druh: Byty
Typ: Predaj
Typ bytu: 4-izbový byt
233 000 €

Popis nehnuteľnosti

Hľadáte byt, do ktorého sa môžete okamžite nasťahovať bez nutnosti ďalších investícií? Tento vkusne zrekonštruovaný 3-izbový byt na Čapajevovej ulici v Košiciach je stelesnením komfortného mestského bývania.

O nehmuteľnosti
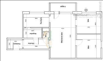
Byt sa nachádza na 9. poschodí a má zasklenú loggiu orientovanú na zeleň vo vnútrobloku. Byt je orientovaný smerom na západ a sever. Bytový dom je zateplený a má výťah. 
V rámci kompletnej rekonštrukcie boli menené rozvody elektriny a vody, bola urobená nová kúpeľňa a WC so sanitou, vymenené podlahy a dlažba, sadrokartónové stropy s bodovým osvetlením. V byte sú plastové okná s novými žalúziami. Nová kuchynská linka má zabudované spotrebiče vrátane indukčnej varnej dosky, vstavanej chladničky, umývačky riadu, teplovzdušnej rúry na pečenie, digestor s vývodom do stúpačky. Byt má klimatizáciu, ktorá v lete zabezpečí vychladenie celého bytu. Klimatizácia má odvod kondenzátu riešený do stúpačky.

Dispozícia, ktorá dáva zmysel
Byt s podlahovou plochou 58 m2 pozostáva z priestrannej vstupnej chodby, dvoch izieb (detská izba, spálňa), obývačky a samostatnej kuchyne, samostatného WC, kúpeľne a loggie o rozlohe 4m2. K bytu patrí priestranná murovaná pivnica.

Lokalita, kde máte všetko na dosah

Táto nehnuteľnosť je ideálna pre jednotlivcov alebo páry, prípadne ako investícia na ďalší prenájom študentom. Je ideálny pre ľudí, ktorí hľadajú kvalitné bývanie s rýchlym prístupom do centra mesta a kompletnou občianskou vybavenosťou v okolí. Byt sa nachádza v pokojnej a príjemnej lokalite, ktorá je vyhľadávaná pre svoju výbornú občiansku vybavenosť a blízkosť prírody.

V pešej dostupnosti sú základné školy, materské školy, potraviny, lekárne, pošta, banky a rôzne služby. V blízkosti sa nachádza aj zastávka MHD, ktorá zabezpečuje rýchle a pohodlné spojenie s centrom mesta a ďalšími mestskými časťami.


Na záver
• Typ ponuky: Predaj
• Nehnuteľnosť: 3-izbový byt
• Okres: Košice – Západ
• Ulica: Čapajevova 
• Celková plocha: 58 m2 + 4 m2 loggie
• Podlažie: 9. NP
• Balkón/lodžia: áno
• Pivnica: Áno
• Výťah: Áno
• Konštrukcia domu: Panelová
• Novostavba: Nie
• Stav bytu: Kompletná rekonštrukcia
• Zateplenie domu: Áno
• Vykurovanie: Ústredné kúrenie
• Možný HÚ: Áno

Realitná kancelária Diamond Reality Vám zabezpečí kompletný právny servis a pomôže s vybavením najvýhodnejšieho financovania.

Neváhajte nás kontaktovať a dohodnite si obhliadku ešte dnes!

Vlastnosti

Status:
aktívne
Vlastníctvo:
osobné
Úžitková plocha:
62 m2
Zastavaná plocha:
58 m2
Stav:
úplne prerobený
Počet izieb:
3
Energetický certifikát:
A
Energetická náročnosť budovy:
Energetický ekonomický
Typ budovy:
bloková konštrukcia
Typ výbavy:
kompletne vybavený
Loggia:
áno
Počet poschodí od prízemia vyššie:
1
Pozícia:
posledné poschodie
Poschodie:
9
Celková plocha:
62 m2
Počet logií:
1
Orientácia:
severozápad
Inžinierske siete:
áno
Voda:
áno
Elektrika:
áno
Plyn:
áno
Kanalizácia:
áno
Vykurovanie - centrálne:
áno

Informatívna úverová kalkulačka

Pozrieť na mape

Maklér

Grad. Lucia Palčíková

Grad. Lucia Palčíková

Realitný maklér pre Košice a blízke okolie

  • Slovensky
  • Česky
  • English
  • Español
  • Italiano

Radi Vám poradíme

Podobné nehnuteľnosti

Rezidencia Krásna